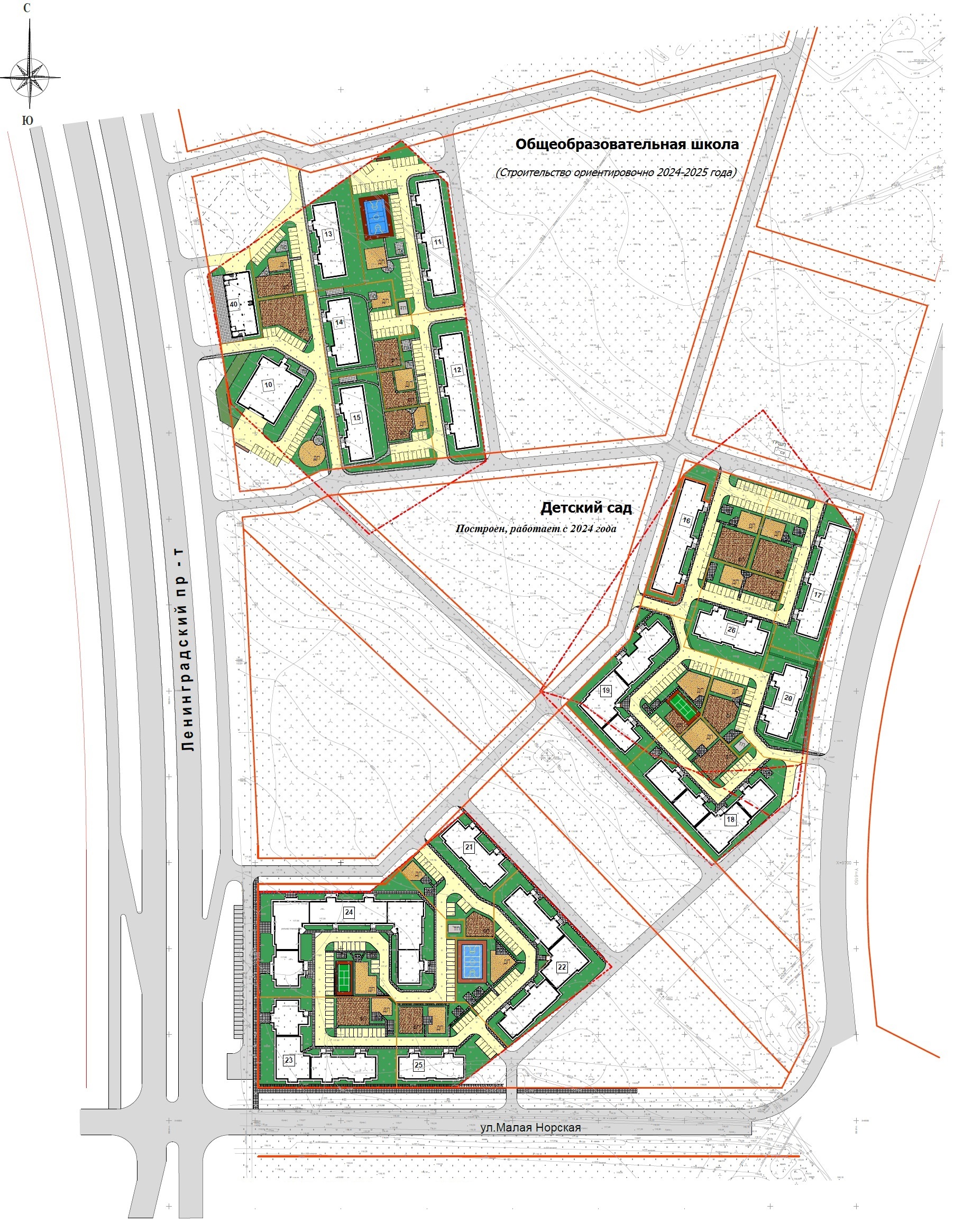
В конце 2019 года начался масштабный проект освоения территории в 15 микрорайоне северного жилого района города Ярославля. Проектом предполагается строительство нового жилого квартала на 16 многоквартирных жилых домов, этажностью от 9 до 16 этажей, а также объектов социально-бытового обслуживания. 5 домов уже построены и введены в эксплуатацию в 2022, 2024 и 2025 году. Рядом выстроен детский сад на 280 мест. В ближайшей перспективе рассматривается строительство общеобразовательной школы.
Строительство жилого дома (N 13) начато в 2025 году. Дом 9 этажный 2 подъездный с однокомнатными и двухкомнатными квартирами площадью от 34 кв.м. до 51 кв.м. Интерьеры квартир решены максимально функционально и лаконично. Теплоснабжение и горячее водоснабжение многоквартирного жилого дома спроектировано с учетом наличия крышной котельной. Мусоропроводы не предусмотрены. Отделка и оборудование квартир: стены – простая штукатурка без обоев и окраски, потолки – железобетонная плита без окраски, полы – полусухая цементно-песчаная стяжка без покрытия, скрытая электропроводка с розетками и выключателями, система отопления с радиаторами, стояки холодного и горячего водоснабжения с приборами учета, канализационный стояк, без сантехники, без межкомнатных дверей, окна ПВХ, входная дверь.
На придомовой территории будут созданы максимально комфортные условия для его жителей. Во дворе дома уютно располагаются детская площадка, площадка для спорта и отдыха, тротуары, гостевая стоянка автотранспорта. Приобретение квартир осуществляется с использованием счетов ЭСКРОУ.
Ознакомиться с ценами, планировками и забронировать квартиру и/или иные нежилые помещения в доме можно кликнув на виджет «КВАРТИРЫ В НАЛИЧИИ». Нажимая на кнопку «Оформить заявку» или «Записаться в очередь бронирования» Вы соглашаетесь с политикой конфиденциальности и даете согласие на обработку своих персональных данных.
| Этажность | 9-этажный | 
| Подъезды | 2 | 
| Количество квартир | 90 | 
| Материал строительства | Керамический кирпич | 
| Система отопления | Крышная газовая котельная | 
| Отделка и оборудование квартиры | Отделка и оборудование квартиры: стены – простая штукатурка без обоев и окраски, потолки – железобетонная плита без окраски, полы – полусухая цементно-песчаная стяжка без покрытия, скрытая электропроводка с розетками и выключателями, система отопления с радиаторами, стояки холодного и горячего водоснабжения с приборами учета, канализационный стояк, без сантехники, без межкомнатных дверей, без газовой плиты, окна ПВХ, входная дверь. Стены – простая штукатурка без обоев и окраски, Потолки – железобетонная плита без окраски, Полы – полусухая цементно-песчаная стяжка без покрытия, Скрытая электропроводка с розетками и выключателями, Система отопления с радиаторами, Стояки холодного и горячего водоснабжения с приборами учета, канализационный стояк, Без межкомнатных дверей, окна ПВХ, входная дверь. | 
| Аккредитация банков | АО Сбербанк, ПАО ВТБ и другие | 
| Документация о проекте | Размещена на сайте — ДОМ.РФ | 




